https://www.cn.actuatech.com/images/testate/pRY0nc_slide1.jpg

集成手动操纵装置的GDV型双效气动执行器

  • 优点
  • 特性
  • 特性
  • 规格
  • accessori
  • 文档
actuatech-attuatori-pneumatici-GDV106-GDV1920.jpg GDV060-GDV1920
actuatech-attuatori-pneumatici-GDV3840.jpg GDV3840
actuatech-attuatori-pneumatici-GDV3840-1.jpg GDV3840
actuatech-attuatori-pneumatici-posizione-aperta-chiusa.jpg 开启和闭合位置
actuatech-attuatori-pneumatici-prima.jpg

1.自润滑的密封滑动轴承
降低活塞与缸筒之间的摩擦力;
即便长期停用,亦可避免密封件与缸筒发生粘连。

2.缸筒、套管和传动轴的硬度超过50 HRC

更强的执行器内部抗力

3.缸筒和活塞之间的滚动摩擦

更小的摩擦力

4.滚动摩擦的十字滑块(通过活塞和无传动装置的轴,将线性运动转换为旋转运动)。

活塞和传动轴之间的摩擦力更小,从而减少零部件磨损
打开和关闭时有着更强的起动扭矩
相较于齿轮和齿条式执行器,其尺寸更小,安装空间需求更低
相较于齿轮和齿条式执行器,其重量更小(-30% Kg/Nm),建造基础设施时可降低成本
相较于齿轮和齿条式执行器,其耗气量更低,(双效:-40% 空气 cm³/Nm;单效:-20% 空气 cm³/Nm),能够有效降低压缩机的工作负荷,或直接使用小尺寸压缩机。

5.滑动缸筒

得益于较低的表面粗糙度,可以降低轴承的磨耗

6.Stainless steel shaft
Higher corrosion resistance

自GD15型号起接埠NAMUR电磁阀的接口

无需安装额外基座

在ACTUATECH自有设施内完成全部生产流程

对加工各个阶段的最佳管控

ATEX认证
可安装于潜在易爆的环境内

最高达SIL3等级的认证
更高的运行安全等级

技术参数
扭矩介于60Nm~3840Nm之间
法兰接口标准:EN ISO 5211
F05 - F07 - F10 - F12 - F14 - F16
符合15714-3标准
旋转角度:92°(-1°,+91°)
起动扭矩:与供应压力成正比;具体请参见表格
标准型GDV执行器的代码中包含5.6Bar时的起动扭矩(Nm)。
ATEX认证型号符合欧盟《2014/34/UE》

运行条件

温度:-20℃~+80℃(特殊型号:高温=-20℃~+150℃;低温=-50℃~+60℃)
额定压力:5.6bar;最高作业压力:8.4bar
流体源:无需润滑且经过滤的压缩空气
需要润滑时,请使用与NBR材质相兼容的油料。

如有需要,我司制造的1/4转气动执行器可加装手动操纵装置。
单效和双效型号均可集成这一装置。
为了使系统良好运行并保持装置的机械完整,使用手动操纵装置执行任何操作之前,必须检查并确保气动执行器的压缩气体供应已断开。
手动操纵装置可直接作用于气动执行器的主要机械传动组件,操纵手轮的扭矩符合EN 12570标准,输出扭矩值等于执行器的标定扭矩值。

GDV60 ÷ GDV1920

技术参数表 GDV60 ~ GDV480
代码GDV0060411SGDV0060412SGDV0106411SGDV0120411SGDV0180411SGDV0240411SGDV0360411SGDV0480411S
密封套件
KGGI0016VXKGGI0016VXKGGI0060VXKGGI0018VXKGGI0019VXKGGI0020VXKGGI0021VXKGGI0022VX
尺寸
GDV 60GDV 60GDV 106GDV 120GDV 180GDV 240GDV 360GDV 480
ISOF04F05/F07F05/F07F05/F07F07/F10F07/F10F07/F10F10/F12
A362,3362,3397,8410,5483510,5567,6634,4
B1414171722222227
C x dephtM5x8M6x9M6x9M6x9M8x12M8x12M8x12M10x15
D x depth-M8x12M8x12M8x12M10x15M10x15M10x15M12x18
E42505050707070102
F-707070102102102125
G1313131316171919
H33,733,740,842,852,556,15857,4
J1818181818181816
K1414141414141416
I1010121215151919
L90,490,4103,3107137,5141,1148164,9
M37,737,744,846,856,560,16272,9
N52,752,758,560,281818692
O16,516,519,319,324,824,824,329,5
P32,732,738,540,251515662
Q37,737,744,846,856,560,16272,9
R14,514,516,21820,222,525,529
S2020202030303030
T70,470,483,387107,5111,1118134,9
U9999118,5122,1144,9156,8169,6193,8
V180180180180220220300300
W (气体)1/8"1/8"1/8"1/8"1/8"1/8"1/8"1/4"
X4444444-
Y137,6137,6154,8163,9183,5199,1220,8236,4
Z263,3263,3279,3288,4338,1353,7398440,6
Ch1313171722222227
转数*
1111131416181516
 重量(Kg)2,82,844,56810,213,2
 供气量(dm3/cycle)0,30,30,70,591,21,652,33,2

* 从自然位置关闭/开启时的理论转速。

技术参数表 GDV720 ~ GDV1920
代码
GDV0720411SGDV0960411SGDV0960412SGDV1440411SGDV1440412SGDV1920411SGDV1920412S
密封套件 KGGI0023VXKGGI0024VXKGGI0025VXKGGI0026VX
尺寸
GDV 720GDV 960GDV 1440GDV 1920
ISOF10/F12F10/F12F14F14F12F14F12/F16
A720,1758758919,9919,9954,1954,1
B27363636364646
C x depthM10x15M10x15M16x24M16x24M12x18M16x24M12x18
D x depthM12x18M12x18----M20x30
E102102140140125140125
F125125----165
G19,519,519,519,519,518,518,5
H61,5787886,586,599,299,2
J16161616161616
K16161616161616
I22242427273232
L178198198216216237,7237,7
M78,593,593,5101,5101,5114,7114,7
N99,5104,5104,5114,5114,5123123
O29,538,538,538,538,548,548,5
P69,574,574,584,584,59393
Q78,593,593,5101,5101,5114,7114,7
R31,836,536,541414646
S30303030303030
T148168168186186207,7207,7
U216,6239,7239,7283,5283,5300,4300,4
V350350350400400400400
W (气体)1/4"1/4"1/4"1/4"1/4"1/4"1/4"
X-------
Y282,3297,1297,1365,6365,6382,9382,9
Z503,5518,3518,3636,4636,4653,7653,7
Ch27272736363636
转数*19202526
重量 (Kg)17,823,833,643
供气量(dm3/cycle)4,66,059,712,9

* 从自然位置关闭/开启时的理论转速。

GDV3840

技术参数表 GDV3840
代码
GDV3840E1600A
密封套件
KGGI0130VX
代码
GDV 3840
ISO
F16
转数* 
30
重量 (Kg)
75
供气量 (dm3/cycle)
24,3

* 从自然位置关闭/开启时的理论转速。

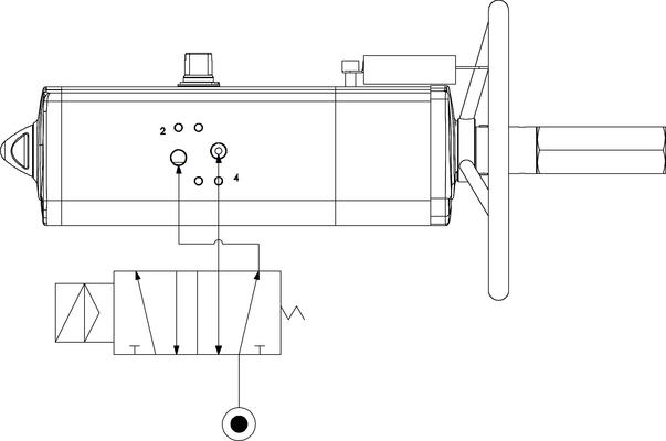
带集成手动控制的执行器操作图

集成手动控制装置的执行器的功能运行图表

左侧图纸 = 处于开启位置的阀门
右侧图纸 = 处于闭合位置的阀门

气路连接典型图表
缸体侧室连接小门2且为其供应加压器体,标准双效执行器的传动轴逆时针将其开启。与中间室相连的小门4在加压时,旋转传动轴顺时针将其关闭。必须直连VDE/VDI 3845 NAMUR标准接口的电磁阀,或在数字2和4位置的小门(连接至单独的配电柜)紧固气管才可实现执行器操纵功能的远程控制。
为了符合ISO 5599-2国际标准,执行器的姿态、位置、方向和气门连接形式必须经过明确鉴别且按照数字2和4的要求上市销售。

X 关闭

下一新闻

Desalination Technology Expo 2025
Desalination Technology Expo 2025
Valencia, Spain, 4 - 5 - 6 November 2025